Перейти в каталог
Форма
Ежедневно: 8:00 - 21:00
Ежедневно: 8:00 - 21:00
Сбросить фильтр Применить
Цена, руб.:
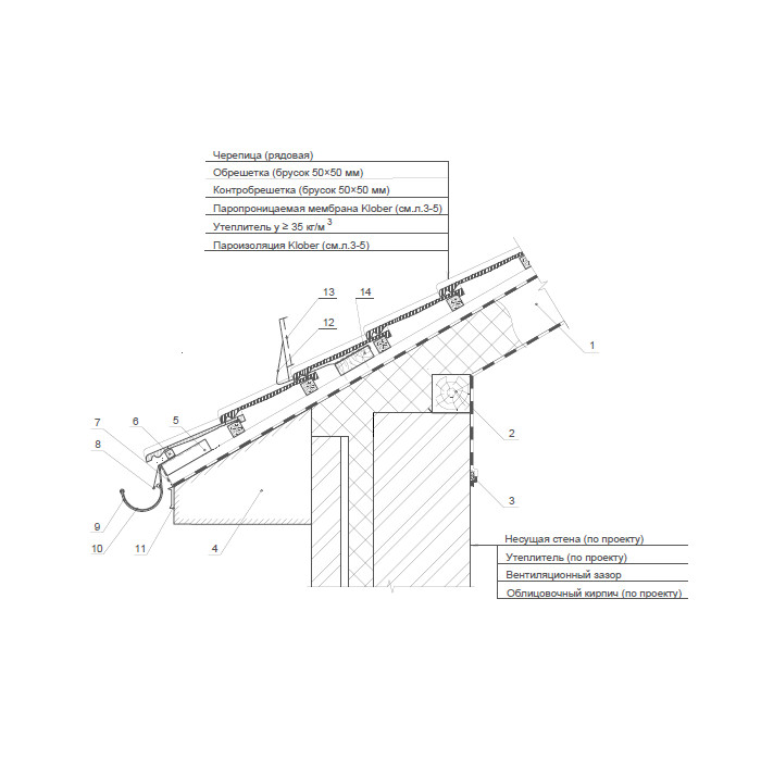
Калькулятор
расчета кровли
Удобный инструмент помогает сократить расходы

Товар можно посмотреть вживую в нашем шоу-руме!

Сверхпрочная пароизоляционная пленка Wallint T100 SK2, 1,5x50 м, KLOBER Показать информацию

20 736

В корзину
Скотч Flecto для пароизоляции, KLOBER Показать информацию

1 517

В корзину

Бесплатный выезд замерщика

Подробнее
Пароизоляционная пленка Wallint T3 SK2, 1,5×50m, KLOBER Показать информацию

37 584

В корзину
Клей-герметик Pasto, KLOBER, 310 мл Показать информацию

1 685

В корзину
Теплоизоляционная плита Extra 50 мм, PAROC Показать информацию

999

В корзину
Теплоизоляционная плита Extra 100 мм, PAROC Показать информацию

999

В корзину
    7
    Условия доставки материала

    Доставка стройматериалов по Софрино осуществляется по следующему тарифу (условия по области уточняйте у менеджера):

    Способ доставки MAX длина груза, м Стоимость доставки
    Машина до 1,5 тн до 18 м3
    макс. длина груза 4 м
    4 от 2 200 руб
    Машина до 2,5 тн до 32 м3
    макс. длина груза 6 м
    6 от 3 000 руб
    Машина до 5 тн до 35 м3
    макс. длина груза 6 м
    6 от 4 000 руб
    Машина до 10 тн до 37 м3
    макс. длина груза 8 м
    8 от 6 000 руб
    Машина до 20 тн до 80 м3
    макс. длина груза 13,5 м
    13,5 от 10 500 руб
    Манипулятор до 5 тн
    макс. длина груза 6 м
    6 от 7 000 руб
    Манипулятор до 10 тн
    макс. длина груза 8 м
    8 от 13 000 руб
    Манипулятор до 20 тн
    макс. длина груза 13,5 м
    14 от 16 000 руб
    advantage

    Гарантия качества

    Заменим дефектный материал или вернём деньги

    Условия возврата
    advantage

    Доставка и самовывоз

    Вы можете заказать доставку по Софрино и Московской области или оформить самовывоз с нашего склада в Софрино

    Условия доставки и самовывоза
    advantage

    Оптово и розничная продажа

    Мы продаем товары как в розницу, так и оптом. В зависимости от объемов заказа мы предоставляем клиентам персональные скидки

    Выберите удобный способ оплаты

    advantage

    Оплата банковской картой

    advantage

    Наличными на объекте

    advantage

    Безналичный расчёт

    Адреса

    • склады
    • офис

    Режим работы складов: 8:00 - 21:00

    Телефон склада в Москве:

    +7 (495) 118-92-43 доб 1

    Телефон склада в Одинцово:

    +7 (495) 118-92-43 доб 2

    Телефон склада в Раменском:

    +7 (495) 118-92-43 доб 3

    Узнать наличие материала на ближайшем складе

    Режим работы складов: 8:00 - 21:00

    Офис:

    улица Патриарха Пимена, 77, Софрино

    График работы офиса:

    9:00 - 20:00

    Номер телефона контактного центра:

    +7 (495) 118-92-43, доб 2

    Почта для связи:

    mail@krovlyamoya.ru

    Узнать наличие материала на ближайшем складе